Complejo en block de 3 unidades a terminar en barrio Entre Pinos al este del centro de Bariloche. Oportunidad de inversion.
Código: 184649
Cmte. Luis Piedrabuena 5251, R8400 San Carlos de Bariloche, Río Negro, Argentina, San Carlos De Bariloche, Rio Negro, Argentina.
USD230.000





















Compartir esta Propiedad
Descripción de la Propiedad
Interesante oportunidad de inversión.
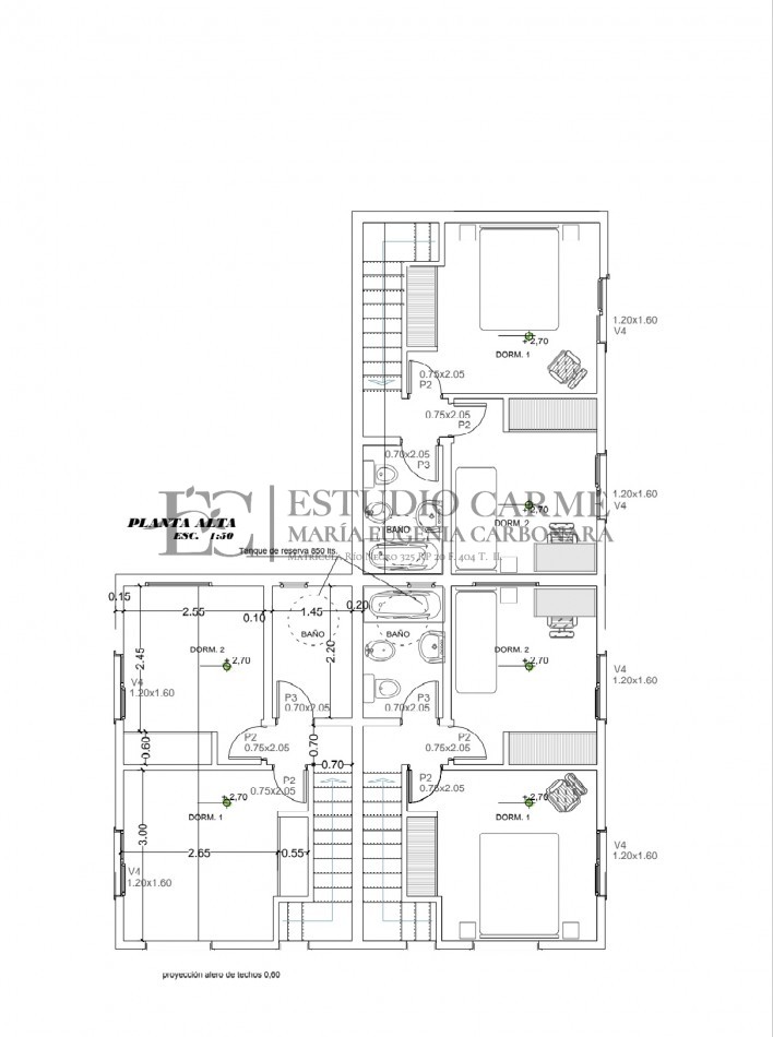
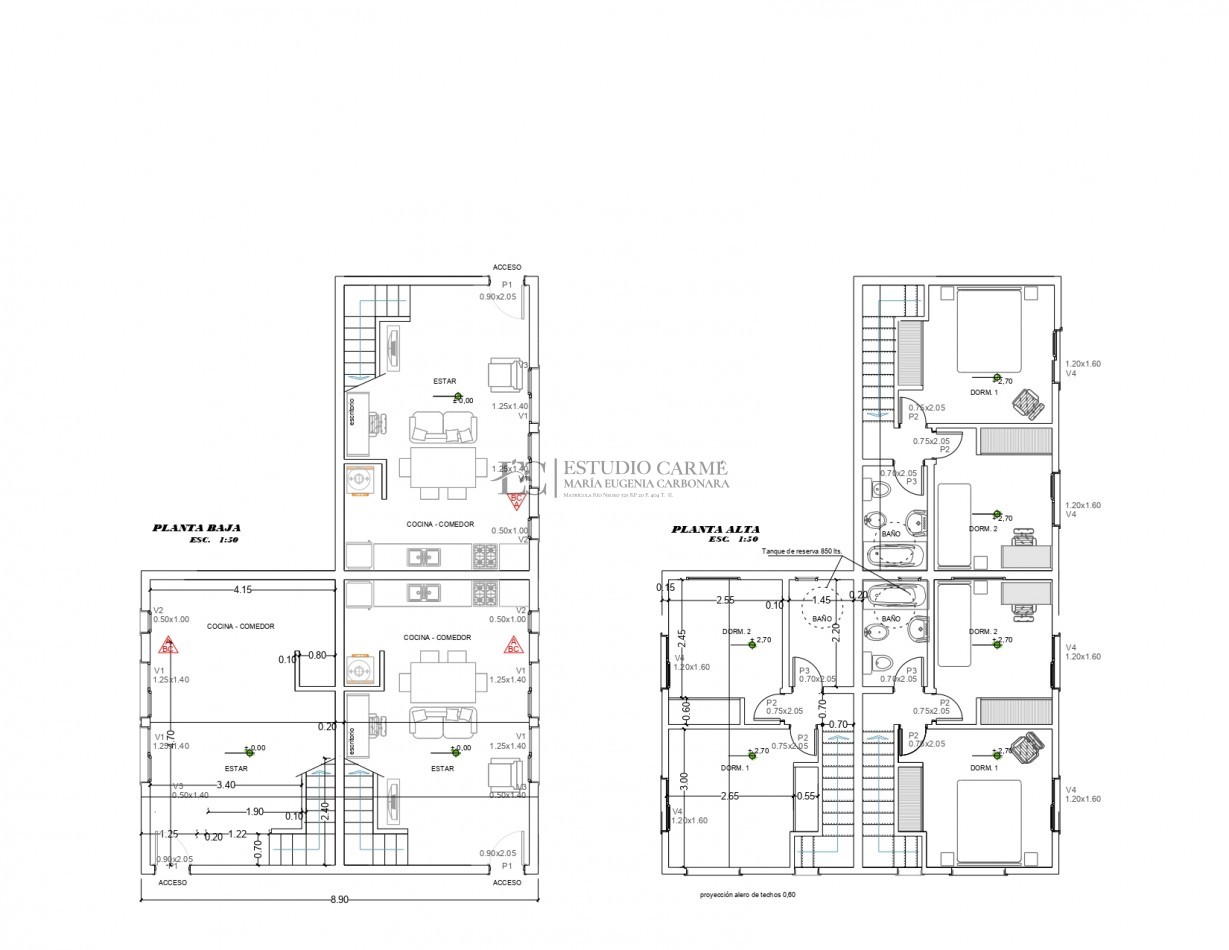
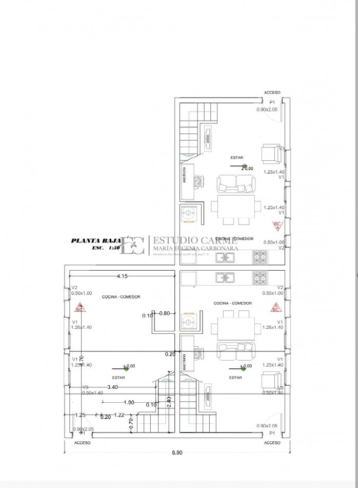
Complejo de tres unidades a terminar, implantadas en un lote de 600 m2.
Se venden en block.
Dos unidades al frente y una al contrafrente.
Cada unidad tiene dos dormitorios.
Aberturas de PVC con DVH, termopanel.
Excelente ubicación al este del centro de Bariloche, en el barrio Entre Pinos,
consolidado con construcciones nuevas y de buen entorno residencial.
Mas detalles
- Acepta mascotas
- Luminoso
- Agua Corriente
- Electricidad
- Tendido Eléctrico
- Red Gas Natural
- apto turismo
- sin expensas
- Aberturas de doble vidrio hermético